Torna indietro
In zona residenziale Canton/Caltrane, adiacente al centro ma allo stesso tempo immersa nel verde e nella tranquillità, contesto di nuova costruzione con 4 alternative studiate per soddisfare le esigenze moderne e conciliare alta efficienza energetica, indipendenza e spazi comodi! Il contesto si comporrà soltanto di 4 unità con un design moderno e ampie vetrate sugli spazi esterni di proprietà esclusiva, ciascun appartamento sarà dotato di garage doppio al piano terra e possibilità di scelta tra giardino esclusivo e terrazzo abitabile. La costruzione sarà così composta:
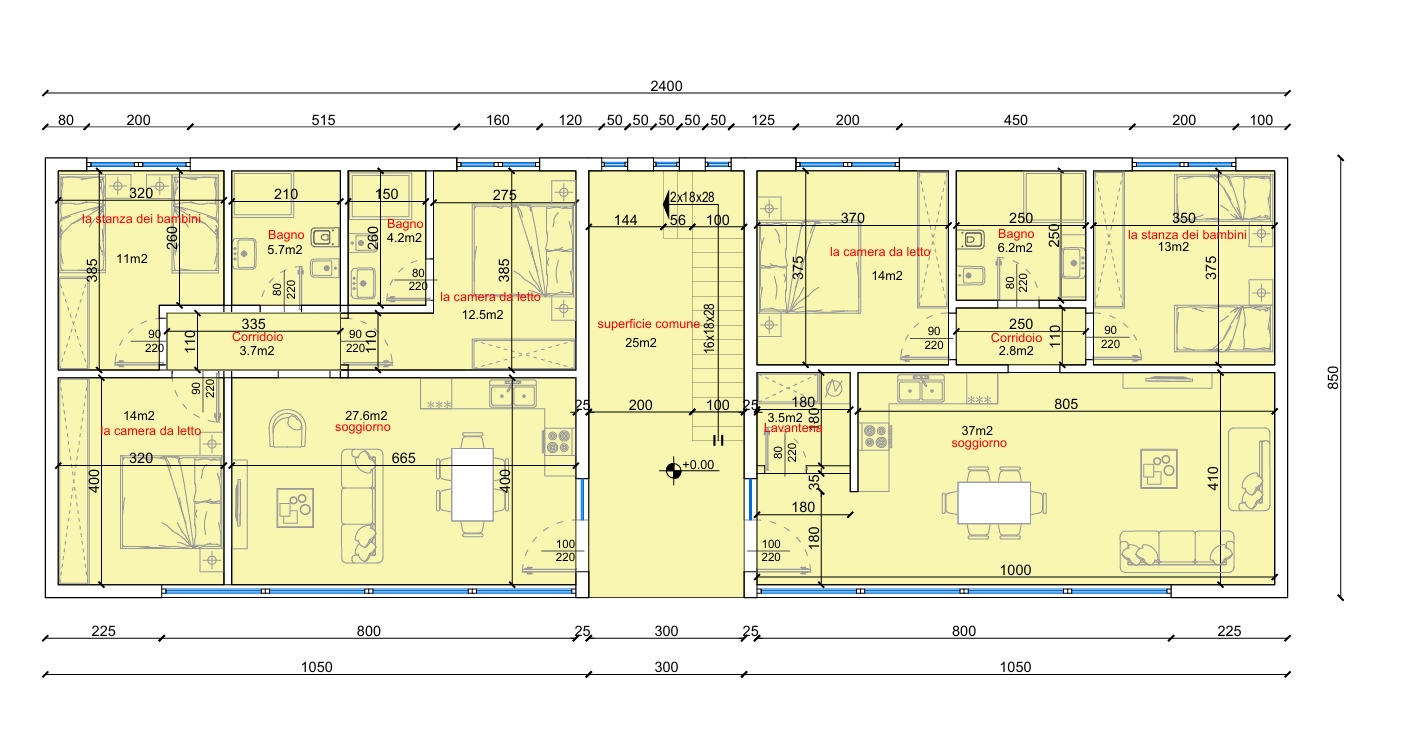
- UNITA' A € 260.000,00:QUADRILOCALE di 100 mq al piano terra con ingresso indipendente, con zona giorno open space, tre camere da letto, due bagni finestrati di cui uno con predisposizione per lavanderia e giardino esclusivo di circa 100 mq che si sviluppa su tre lati dell'abitazione
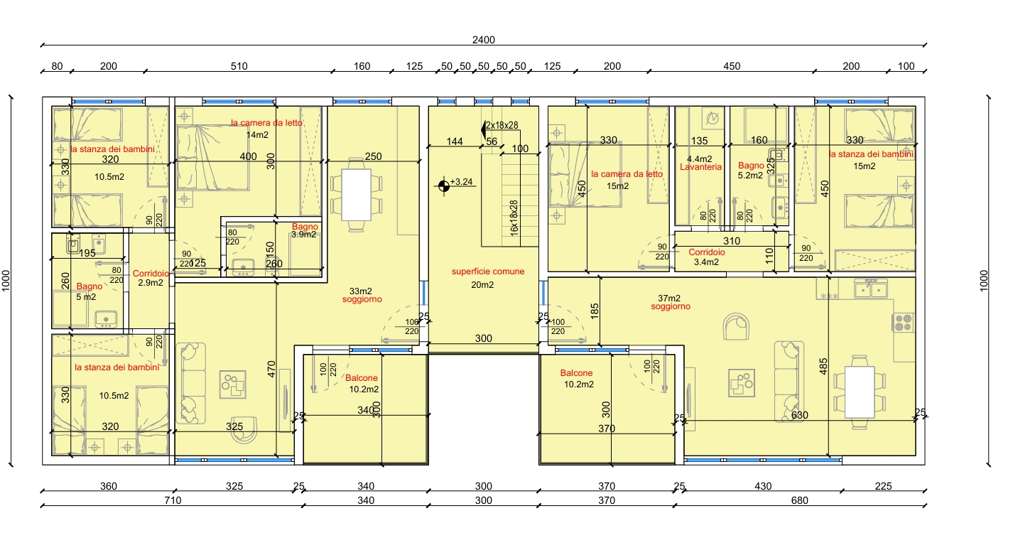
- UNITA' B € 255.000,00: QUADRILOCALE di 100 mq al piano primo con cucina-soggiorno open space con terrazzo 11 mq, tre camere da letto e due bagni;
- UNITA' C € 250.000,00: TRILOCALE di 90 mq al piano terra con ingresso indipendente con ampio open space, due camere spaziose e due bagni;
- UNITA' D € 245.000,00: TRILOCALE di 95 mq al piano primo con grande open space, due camere matrimoniali, due bagni finestrati e terrazzo di 11 mq
L'immobile sarà costruito rispettando la normativa antisismica, con finiture di alta qualità, serramenti in PVC con triplo vetrocamera, riscaldamento a pavimento, 6 kw di pannelli fotovoltaici per ogni abitazione e pavimenti a scelta tra varie opzioni! Una vera perla, unica e moderna introvabile!!!

Dettagli immobile

Contratto VENDITA
Comune BOVOLONE
Prezzo € 245.000,00
Tipologia APPARTAMENTO IN QUADRIFAMILIARE
Tipo proprietà INTERA
Stato NUOVO
Classe Energetica A2
Bagni 2
Camere 2/3
N° piano 2
Giardino PRIVATO